
宝安海峦坊私宅 - 58m²中古风混搭风
在宝安海峦坊,有一座58㎡的温馨私宅,宛如都市喧嚣中的一颗宁静明珠,散发着独特迷人的光彩。女屋主是一位从事金融行业的独立女性,她怀着对生活的深深热爱,亲手打造了这个专属于自己的温馨小天地,而全屋装修全包花费15万,就呈现出了令人惊艳的温馨精致效果。
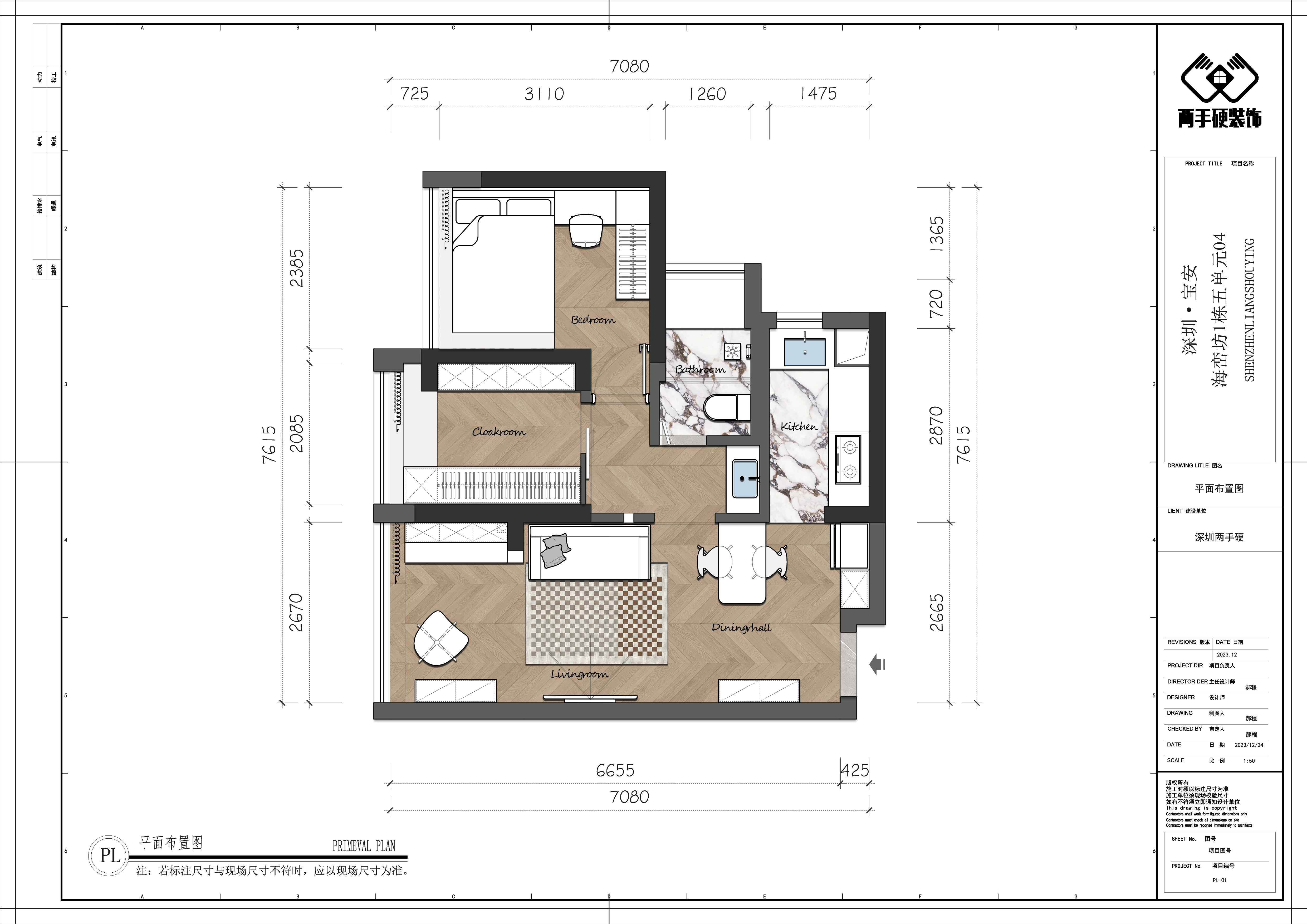
户型图

屋主经过多方考察与沟通,最终选择我们为她改造这套房子。设计师郝工在了解屋主需求后,明确了“实用、舒适、考究、精致”等生活关键词,并对全屋状况进行了细致梳理:
- 现有的布局无法满足业主家庭生活的个性化需求;
- 收纳空间较为有限,难以满足屋主物品的储存及展示需求;
- 全屋的基调不够精致,与屋主所期望的生活方式不相匹配;
- 屋主做饭频率不高,但缺少西厨台面,无法满足其对咖啡角空间的需求。
设计师郝工聚焦于屋主期望的生活状态,在安全范围内,首先针对收纳储物以及功能区域进行了相应调整。
玄关

一进门,玄关处的冰箱贴墙格外引人注目。女屋主热爱旅行,每一个冰箱贴都是她在旅途中精心带回的珍贵纪念品,承载着她的美好回忆,让这个角落洋溢着浓郁的生活气息。每当有朋友来家里做客,第一眼总会被这面独特的冰箱贴墙吸引,随即饶有兴致地聊起女屋主那些精彩的旅行故事。脚下通铺的90×120mm人字拼木地板,细腻的纹理仿佛在轻声细语地讲述着家的温暖与安宁。
餐厅

再往里走,温馨的餐厅便展现在眼前。一张胡桃木小圆桌静静地伫立着,如同一位优雅的淑女等待着主人的到来。黑色框架搭配白色绒毛坐垫的凳子环绕四周,它们见证了女屋主独自享受宁静用餐时光的惬意,也记录了她与亲朋好友欢聚一堂时的温馨与欢乐。同样通铺的木地板,让餐厅与整个家居环境完美和谐地融为一体。
厨房

走进厨房,地面铺设的是200200mm的地砖,黑色的拱形门框为烹饪空间增添了一份复古韵味。橱柜后面采用300900mm的墙砖,色彩斑斓的花砖为整个空间注入了活泼与灵动的气息。简洁大方的橱柜与花砖相互映衬,和谐又美观。尽管女屋主做饭不多,中厨已能满足需求,但缺少西厨台面和咖啡角的空间。
客厅

穿过玄关,客厅的独特魅力扑面而来。装饰壁炉散发着柔和的光芒,宛如一位默默守护的使者,给整个空间带来了无尽的温暖。壁炉柜上摆放的泡泡玛特香薰,散发出淡淡的甜香,让空气中弥漫着浪漫的氛围。

三星画镜电视如同一个通向世界的窗口,展示着精彩的画面。毛绒沙发柔软舒适,就像一朵轻柔的云,让人一坐上去就不想起来。中古风地毯的细腻纹理和温暖色彩,让人的双脚仿佛踩在一幅精美的画卷上。


阳台

阳台往外扩封窗,在角落增加了收纳柜,既增加了操作台面又把洗烘设备藏了起来。地面通铺着木地板,定制的柜子美观实用,柜子上摆放着女屋主心爱的咖啡机、马克杯以及各种咖啡物品的小物件。阳光洒在这些物件上,仿佛都在诉说着女屋主对咖啡的热爱。微风轻轻拂过,让人感受到生活的宁静与美好。
卫生间

走廊通往卫生间的门是独特的拱形,还用黑色门框加以装饰,为整个空间增添了一份复古而神秘的气息。卫生间里,柜子搭配白色洗手台,形成简洁而醒目的对比。

卫生间地面的200×200mm地砖和内部的300×900mm花砖相得益彰,形成了独特而迷人的装饰。洗手台和时尚的镜子,营造出精致而舒适的感觉。

衣帽间

衣帽间无疑是女屋主的时尚领地。通铺的木地板散发着优雅的气息,双排衣柜设计巧妙,每一寸空间都被充分利用。

考虑到偶尔有客人暂住,在作为衣帽间的同时增加了翻板床。外挂移门节省了平开门浪费的空间,柜体靠墙,有了更多的收纳空间。
卧室

踏入卧室,首先映入眼帘的是精致的化妆台,它安静地立在角落,仿佛一位优雅的侍女,等待着女屋主来梳妆打扮。

与之相邻的是榻榻米形式的床,它与卧室的柜子巧妙地融为一体。这一体化的设计既节省了空间,又展现出和谐的美感。榻榻米的柔软床垫让人仿佛置身于云朵之上,卧室通铺木地板,营造出舒适的睡眠氛围。主卧还配置了一个小的次净衣的柜子,方便放些当天的衣服。



